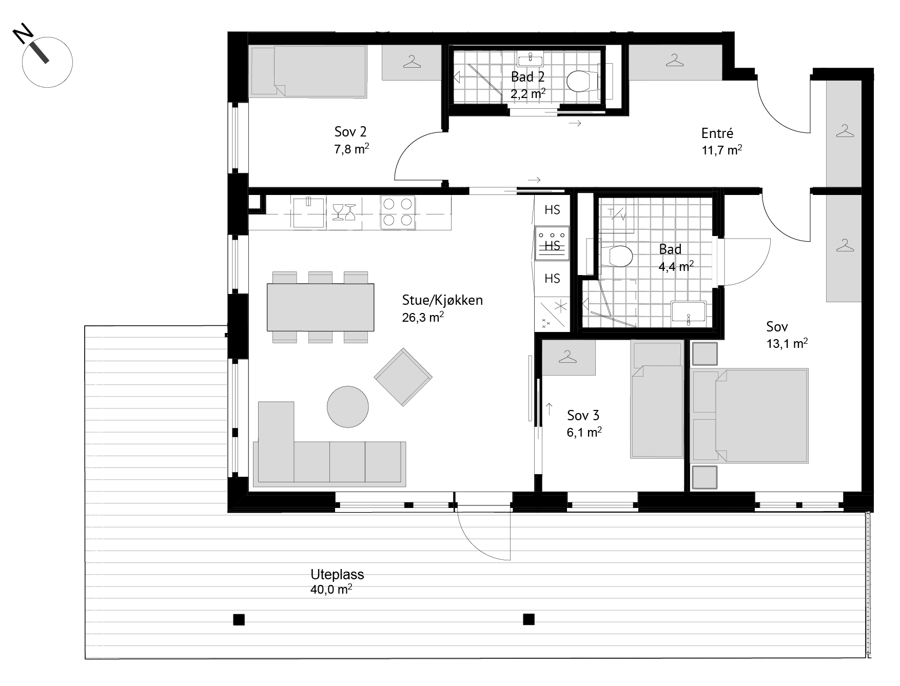
1A-103
Solgt
Pris
Omkostninger
Totalpris
Fellesutgifter
Etasje
1
BRA m²
82,4
Soverom
3
BRA-i m²
77,4
BRA-e m²
5
Balkong m²
40
Kontakt megler
Svein Gundersen
Prosjektmegler | EiendomsMegler 1 | Oslo Nybygg
Christian Fr. Foss
Prosjektmegler | EiendomsMegler 1 | Oslo Nybygg
Olav Aune
Prosjektmegler | EiendomsMegler 1 | Oslo Nybygg

