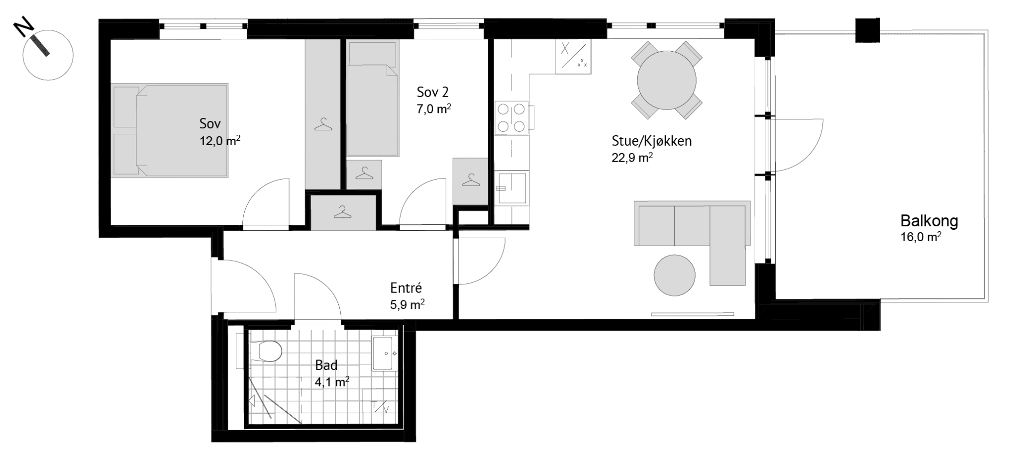
1C-401
Solgt
Pris
Omkostninger
Totalpris
Fellesutgifter
Etasje
4
BRA m²
60,5
Soverom
2
BRA-i m²
55,5
BRA-e m²
5
Balkong m²
16
Kontakt megler
Svein Gundersen
Prosjektmegler | EiendomsMegler 1 | Oslo Nybygg
Christian Fr. Foss
Prosjektmegler | EiendomsMegler 1 | Oslo Nybygg
Olav Aune
Prosjektmegler | EiendomsMegler 1 | Oslo Nybygg

