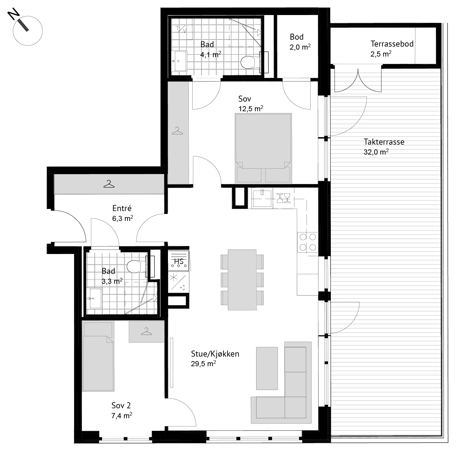
1D-602
Pris
7 690 000
Omkostninger
16 110
Totalpris
7 706 110
Fellesutgifter
3 779
Etasje
6
BRA m²
77,6
Soverom
2
BRA-i m²
70,1
BRA-e m²
7,5
Balkong m²
32
Kontakt megler
Svein Gundersen
Prosjektmegler | EiendomsMegler 1 | Oslo Nybygg
Christian Fr. Foss
Prosjektmegler | EiendomsMegler 1 | Oslo Nybygg
Olav Aune
Prosjektmegler | EiendomsMegler 1 | Oslo Nybygg

